Upútavky
Bezplatná aplikácia mesta

 

Nainštalujte si bezplatnú aplikáciu mesta v mobile a získajte prístup k dôležitým informáciám z mesta

Priemyselný park

 

PRIEMYSELNÝ PARK

INDUSTRIAL PARK

Územný plán mesta

ÚZEMNÝ PLÁN MESTA VRANOV NAD TOPĽOU

Najčítanejšie

Mesto Vranov nad Topľou postaví novú športovú halu

« späť
Aktuality a oznamy » Udialo sa... » Mesto Vranov nad Topľou postaví novú športovú halu

Mesto Vranov nad Topľou postaví novú športovú halu Nová športová hala, na výstavbu ktorej mesto získalo finančné prostriedky ako dotáciu vlády SR vo výške 1 750 000 eur, vyrastie v areáli pri Základnej škole Juh. O jej umiestnení, ako aj predbežnom určení investičných nákladov na jej výstavbu, rozhodli poslanci na 16. zasadnutí mestského zastupiteľstva, ktoré sa konalo 15. 7. 2020.

„V pôvodnom zámere sme uvažovali nad výstavbou veľkej športovej haly, s veľkým parkoviskom a námestím, pri iných veľkých športoviskách, a to v hodnote približne 4 miliónov eur. Nakoľko už vieme, že na výstavbu máme približne 2 milióny eur, rozhodli sme sa športovú halu postaviť priamo v areáli Základnej školy Juh, čo ocenili aj samotní tréneri. Veľkou výhodou zmeny umiestnenia výstavby športovej haly je možnosť jej využívania aj počas výučby telesnej výchovy. V tejto lokalite sú ďalšie 3 základné školy, stredná škola, čiže je tam vysoká koncentrácia detí, bývajúcich v ich blízkosti, ale aj detí, ktoré navštevujú tieto školy. Zároveň tento nový športový objekt nahradí nafukovaciu športovú halu, čiže týmto spôsobom ušetríme finančné prostriedky na jej prevádzku.“ povedal primátor mesta Ján Ragan.

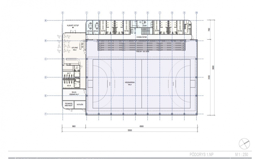
Objekt športovej haly je navrhnutý ako samostatne stojaci objekt obdĺžnikového pôdorysu rozmeru 39,0 m x 55,5 m. Dispozične bude tento objekt rozdelený na dve samostatné časti, a to na športovú halu a jednopodlažné zázemie haly. Samotná hala bude riešená tak, aby umožňovala ligové zápasy, prípadne turnaje hádzanárskych družstiev. V zázemí haly budú umiestnené samostatné šatne pre jednotlivé družstvá, miestnosť pre rozhodcov, kancelárie a miestnosť pre lekára. Vo vstupných priestoroch bude, kaviareň, hygienické zariadenie, sklad náradia a technické zázemie.

„Tento objekt bude vyťažený predovšetkým na tréningovú činnosť detí a mládeže a v rámci vyučovacieho procesu počas pracovných dní. Problém z parkovaním môže nastať počas víkendov. Preto v spolupráci s výborom MČ JUH vytypujeme lokality, kde by sme vytvorili nové parkovacie plochy. Tie budú slúžiť nielen pre športovú halu, ale aj pre obyvateľov tejto mestskej časti,“ skonštatoval Ján Ragan.

Na výstavbu tejto športovej haly mesto využije dotáciu vlády SR vo výške 1 750 000 eur. Jedná sa o kapitálové výdavky, ktoré mesto musí prefinancovať do konca roka 2021. O zvyšné finančné prostriedky, a to vo výške približne 250 000 eur, ktoré budú potrebné na dofinancovanie výstavby haly, sa mesto bude uchádzať buď zo zdrojov PSK, zo štrukturálnych fondov alebo výstavbu dofinancuje z úverových zdrojov.

« späť

aktualizácia: 17.08.2020 | počet zobrazení: 8 243
Počet návštev od 21.02.2008: 7611089
Počet návštev dnes: 5623